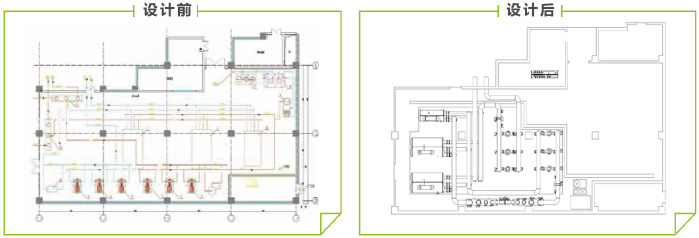
高效集成冷热源系统是中央空调机房系统集成解决方案,国内首家引入国外先进成熟的应用经验,结合多年来的航天工程经验,以关联预测控制系统为核心,开展二次深化设计和三维仿真,通过工厂预制、模块运输、现场拼装的智能机电一体化系统级产品。

01 关联预测控制系统
关联预测控制系统是一个可普遍适用于冷冻机房的节能控制策略和控制设备。对系统(包括冷水机组、循环水泵和冷却塔等)进行整体能耗优化,并通过对中央空调水系统末端负荷数据的建模仿真计算,预测出下一时段中央空调系统的冷量需求,对系统进行主动前馈控制,实现系统的高效稳定运行,达到系统整体最大化节能的目的。



02 信息化服务平台
节能信息化服务平台依托建设于北京的信息化服务中心,服务范围涵盖全国重点地区,有效的为用户提供技术咨询、信息查询、信息化运营维护、服务质量考评等服务。














